×
INSTAPKLARE, RUIME EN DUURZAME TUSSENWONING MET VIER SLAAPKAMERS, ENERGIELABEL A+ EN VRIJ UITZICHT
Let op: de genoemde prijs betreft een bieden-vanaf-prijs!
Ben je op zoek naar een moderne en energiezuinige woning met volop ruimte, een zonnige tuin én een rustige ligging? Dan is Moldaviëstraat 140 in Almere Poort precies wat je zoekt. Deze instapklare gezinswoning uit 2022 is uitgevoerd in de populaire New Brooklyn-stijl en combineert comfort, duurzaamheid en een ideale woonomgeving.
Met 144 m² woonoppervlak, vier riante slaapkamers, een luxe keuken, een complete badkamer en een heerlijke tuin op het zuidoosten is dit huis meer dan compleet. Dankzij het energielabel A+, HR++ beglazing, zonnepanelen en vloerverwarming door de hele woning woon je hier toekomstbestendig én comfortabel.
Omgeving
De woning ligt in de geliefde wijk Europakwartier Oost (New Brooklyn), een moderne buurt geïnspireerd op de karakteristieke bouwstijl van Brooklyn, New York. Hier geniet je van een rustige en groene omgeving, terwijl alle voorzieningen binnen handbereik zijn.
Op loop- en fietsafstand vind je scholen, supermarkten, een gezondheidscentrum, kinderdagverblijven en NS-station Almere Poort. Voor natuurliefhebbers liggen het strand, het Cascadepark en het Stadsbos om de hoek. Met de auto rijd je bovendien binnen enkele minuten de A6 of A27 op.
Indeling
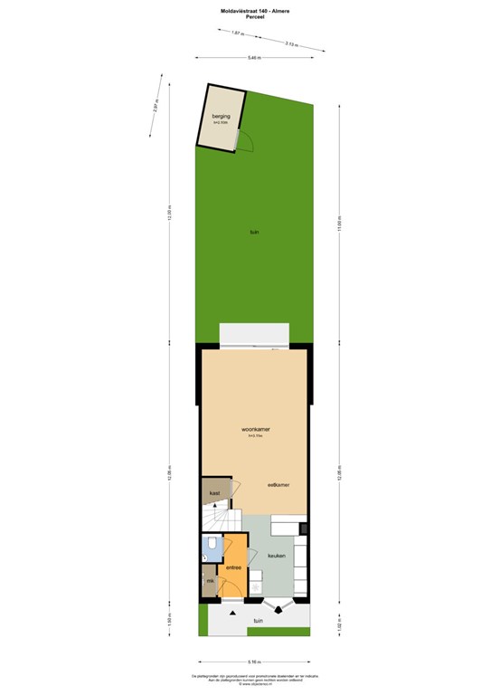
Begane grond
Via de verzorgde voortuin bereik je de entree met hal, toilet en meterkast. De moderne keuken in parallelopstelling bevindt zich aan de voorzijde en is voorzien van hoogwaardige inbouwapparatuur, waaronder een inductiekookplaat, vaatwasser, combi-oven, oven, koel-vriescombinatie, afzuiginstallatie én een Quooker. Vanuit hier heb je vrij uitzicht op het groen.
De lichte woonkamer beschikt over grote raampartijen, een trapkast en een schuifpui naar de achtertuin. Hier is voldoende ruimte voor een gezellige zithoek en een royale eettafel. De gehele begane grond is voorzien van een strakke PVC-vloer met vloerverwarming.
Eerste verdieping
De overloop geeft toegang tot twee ruime slaapkamers met grote ramen en een keurige afwerking. De centraal gelegen badkamer is compleet ingericht met een inloopdouche, een tweepersoonsligbad, een wastafelmeubel, zwevend toilet en designradiator.
Tweede verdieping
Via de vaste trap bereik je de derde en vierde slaapkamer, beide eveneens netjes afgewerkt. Hier vind je ook de aansluitingen voor wasmachine en droger, evenals de installaties.
Tuin
De achtertuin ligt op het zuidoosten, waardoor je van ’s ochtends vroeg tot in de avonduren van de zon kunt genieten. Achterin staat een vrijstaande berging met elektra en verlichting, en de woning beschikt over een eigen achterom.
Bijzonderheden
• Instapklare tussenwoning in Almere Poort
• Bouwjaar 2022
• Woonoppervlakte: 144 m² (NEN2580 meetrapport aanwezig)
• Perceel: 118 m²
• Vier ruime slaapkamers
• Luxe keuken met complete inbouwapparatuur
• Badkamer met ligbad en inloopdouche
• Vloerverwarming door de hele woning
• Voorzien van zonnepanelen en HR++ beglazing
• Energielabel A+, volledig geïsoleerd
• Rustige ligging met vrij uitzicht
• Gratis parkeren in de omgeving + laadpaal nabij
• Voor- en achtertuin, achterom aanwezig
• Oplevering in overleg
Deze woning biedt alles wat je zoekt: ruimte, comfort, duurzaamheid én een prachtige ligging. Plan vandaag nog een bezichtiging en ervaar zelf dit unieke woongenot!