Purmerend – Westland 47


























































Beschrijving
Instapklaar, luxe en duurzaam wonen in het groene Purmer-Zuid/Noord
Ben je op zoek naar een moderne, perfect afgewerkte woning waar je zó in kunt? Een huis met vier ruime slaapkamers, een eigen oprit (plaats voor twee auto’s), energielabel A én vrij uitzicht? Dan is deze prachtige, in 2022 riant uitgebouwde tussenwoning aan het Westland 47 absoluut het bekijken waard.
Deze royale en uiterst verzorgde woning (bouwjaar 1987) is in 2020 en 2022 grotendeels gemoderniseerd en maar liefst 19 m² uitgebouwd. Met onder meer HR++ glas, vloerverwarming en hoogwaardige isolatie woon je hier niet alleen comfortabel, maar ook bijzonder energiezuinig. Gasloos wonen met een lage energierekening, helemaal klaar voor de toekomst!
Ligging en bereikbaarheid
De ligging is net zo aantrekkelijk: de woning bevindt zich in een rustige en kindvriendelijke buurt, aan de onderdijk van de Purmerringvaart en aan de rand van de woonwijk. De wijk is ruim opgezet en biedt volop groen en speelruimte.
In de directe nabijheid vind je diverse basisscholen, sportverenigingen en speeltuinen. Voor de dagelijkse boodschappen is winkelcentrum Meerland goed bereikbaar. Evenals het openbaar vervoer met bus- en treinverbindingen richting onder andere Amsterdam.
Het bruisende hart van Purmerend, de gezellige Koemarkt, ligt op fietsafstand. Hier kun je terecht voor een breed aanbod aan restaurants, cafés en winkels, of voor een kop koffie op een zonnig terras. Ook recreatiegebieden zoals het Purmerbos en het Leeghwaterpark bevinden zich op korte fietsafstand.
Indeling
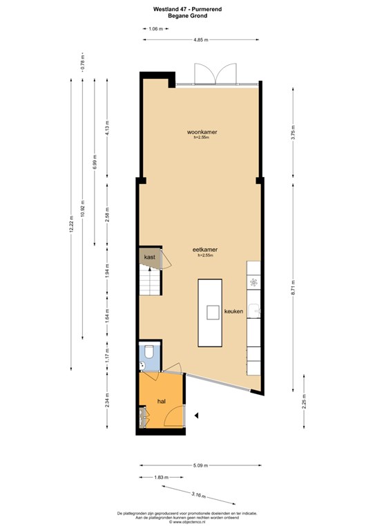
Begane grond – licht, luxe en een heerlijke leefruimte
De gehele begane grond is in 2022 volledig gerenoveerd en voorzien van vloerverwarming.
Via de verzorgde voortuin betreed je de hal met toilet, meterkast en garderobe. De stijlvolle, uitgebouwde woonkamer is een ware eyecatcher. Dankzij de grote raampartijen valt het daglicht rijkelijk naar binnen, wat zorgt voor een lichte en uitnodigende sfeer. De begane grond is afgewerkt met een elegante pvc-vloer in visgraatmotief en strak gestuukte wanden.
De openslaande deuren...
Instapklaar, luxe en duurzaam wonen in het groene Purmer-Zuid/Noord
Ben je op zoek naar een moderne, perfect afgewerkte woning waar je zó in kunt? Een huis met vier ruime slaapkamers, een eigen oprit (plaats voor twee auto’s), energielabel A én vrij uitzicht? Dan is deze prachtige, in 2022 riant uitgebouwde tussenwoning aan het Westland 47 absoluut het bekijken waard.
Deze royale en uiterst verzorgde woning (bouwjaar 1987) is in 2020 en 2022 grotendeels gemoderniseerd en maar liefst 19 m² uitgebouwd. Met onder meer HR++ glas, vloerverwarming en hoogwaardige isolatie woon je hier niet alleen comfortabel, maar ook bijzonder energiezuinig. Gasloos wonen met een lage energierekening, helemaal klaar voor de toekomst!
Ligging en bereikbaarheid
De ligging is net zo aantrekkelijk: de woning bevindt zich in een rustige en kindvriendelijke buurt, aan de onderdijk van de Purmerringvaart en aan de rand van de woonwijk. De wijk is ruim opgezet en biedt volop groen en speelruimte.
In de directe nabijheid vind je diverse basisscholen, sportverenigingen en speeltuinen. Voor de dagelijkse boodschappen is winkelcentrum Meerland goed bereikbaar. Evenals het openbaar vervoer met bus- en treinverbindingen richting onder andere Amsterdam.
Het bruisende hart van Purmerend, de gezellige Koemarkt, ligt op fietsafstand. Hier kun je terecht voor een breed aanbod aan restaurants, cafés en winkels, of voor een kop koffie op een zonnig terras. Ook recreatiegebieden zoals het Purmerbos en het Leeghwaterpark bevinden zich op korte fietsafstand.
Indeling
Begane grond – licht, luxe en een heerlijke leefruimte
De gehele begane grond is in 2022 volledig gerenoveerd en voorzien van vloerverwarming.
Via de verzorgde voortuin betreed je de hal met toilet, meterkast en garderobe. De stijlvolle, uitgebouwde woonkamer is een ware eyecatcher. Dankzij de grote raampartijen valt het daglicht rijkelijk naar binnen, wat zorgt voor een lichte en uitnodigende sfeer. De begane grond is afgewerkt met een elegante pvc-vloer in visgraatmotief en strak gestuukte wanden.
De openslaande deuren geven toegang tot de verzorgde achtertuin op het zuidoosten, waar je vrijwel het hele jaar door kunt genieten van het buitenleven. Een heerlijke plek om te ontspannen met familie en vrienden. Direct aan de achtertuin bevindt zich een groot speelveld voor de kinderen.
Aan de voorzijde bevindt zich de luxe open keuken met kookeiland, volledig vernieuwd en uitgerust met alle gewenste inbouwapparatuur: een inductiekookplaat met geïntegreerde afzuiging, oven, combi-oven, vaatwasser, koelkast, vriezer en een luxe mengkraan. Het stijlvolle werkblad en de ruime kastruimte maken het geheel compleet. Vanuit de keuken heb je bovendien een prachtig vrij uitzicht over de groene omgeving.
Eerste verdieping
De eerste verdieping beschikt over drie keurig afgewerkte slaapkamers. Twee kamers bevinden zich aan de voorzijde en bieden een fraai vrij uitzicht over water en groen. De kleinste slaapkamer geeft toegang tot het zonnige balkon op het noordwesten. De derde slaapkamer ligt aan de achterzijde. Alle kamers zijn voorzien van nette wandafwerking en een verzorgde laminaatvloer.
De luxe badkamer (2020) is modern en stijlvol uitgevoerd en voorzien van onder andere een ruime inloopdouche en een fraai badkamermeubel – een plek om volledig tot rust te komen.
Tweede verdieping
Via een vaste trap bereik je de tweede verdieping. Op de overloop heb je toegang tot de vierde, royale slaapkamer. Deze fijne ruimte is voorzien van een groot dakraam en uitstekend geschikt als slaapkamer, thuiswerkplek of hobbyruimte.
Op de overloop bevinden zich tevens de aansluitingen voor de wasmachine en droger.
Parkeren
Parkeren kan comfortabel op de eigen oprit met ruimte voor twee auto’s, of op één van de vele gratis parkeerplaatsen in de directe omgeving. Elektrisch rijden? Het plaatsen van een laadpaal is eenvoudig te realiseren.
Bijzonderheden
– Instapklaar, modern en energiezuinig
– Energielabel A
– Vloerverwarming op de begane grond
– Volledig gemoderniseerde en uitgebouwde tussenwoning
– Begane grond in 2022 volledig gerenoveerd en uitgebouwd (ruim 19 m²)
– Luxe keuken met kookeiland (2022)
– Vier ruime slaapkamers, waarvan één met balkon
– Moderne badkamer (2020)
– Zonnige achtertuin op het zuidoosten
– Parkeren op eigen terrein
– Rustige, groene omgeving met alle voorzieningen nabij
– Uitstekende bereikbaarheid
– Oplevering in overleg
Wil je wonen in een instapklare en royale woning met vrij uitzicht, rust én alle voorzieningen binnen handbereik? Mis deze kans niet en neem snel contact met ons op voor een bezichtiging. Wij laten je de woning graag zien en vertellen je meer over de vele mogelijkheden die deze fijne woonomgeving te bieden heeft.
